€
EUR
Imóveis
Contactos
Consultores
Quer Vender?
Sobre Nós
Recrutamento
Notícias
Mais
Imóveis
Contactos
Consultores
Quer Vender?
Sobre Nós
Recrutamento
Notícias
0
0
Moradia em banda Arcozelo Barcelos
Braga, Barcelos
Voltar
\
Moradia em banda Arcozelo Barcelos - Braga, Barcelos
Partilhar Imóvel
Facebook
X
Pinterest
WhatsApp
Copiar link
Link copiado
Imprimir ficha
Enviar imóvel a amigo
Insira um Nome
Insira um Email
Insira um endereço de email válido
Insira um Nome
Insira um Email
Insira um endereço de email válido
Li na totalidade e concordo com os termos e condições apresentados.
Saber mais »
Para poder concluir esta operação deve ler e concordar com as nossas condições
Campos obrigatórios *
Enviar
Fotos
Plantas
Seguir imóvel
Reservado
Seguir imóvel
Receba um alerta quando existir uma Baixa de Preço
Nome
Insira o seu Nome
E-mail
Insira o seu email
Insira um endereço de email válido
Li e aceito a
Política de Privacidade
Para poder concluir esta operação deve ler e concordar com as nossas condições
Insira o código da imagem
Código
Enviar
Moradia em banda Arcozelo Barcelos
Sob Consulta
Ref:
2532BCL
3
3
1
118 m²
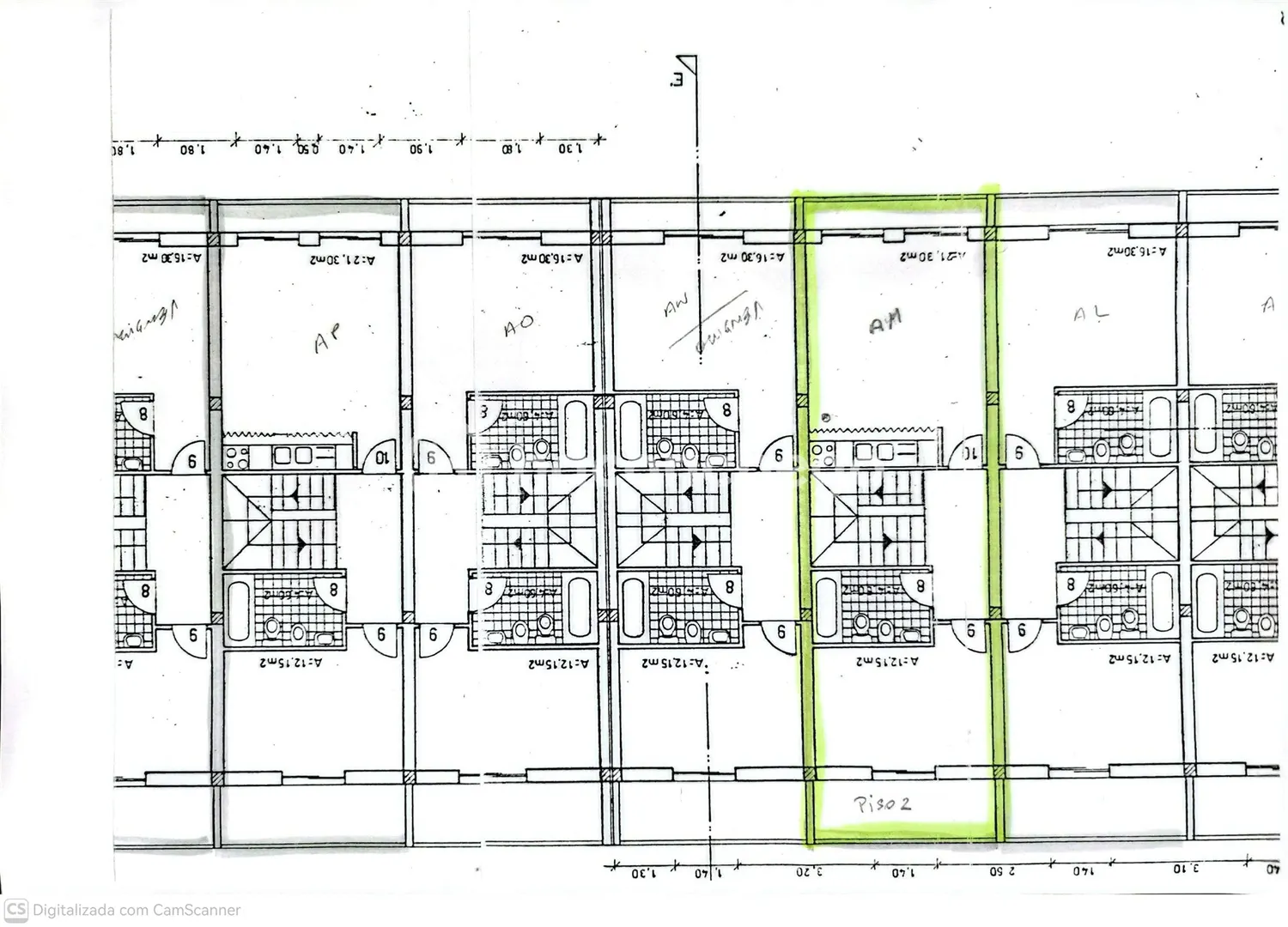
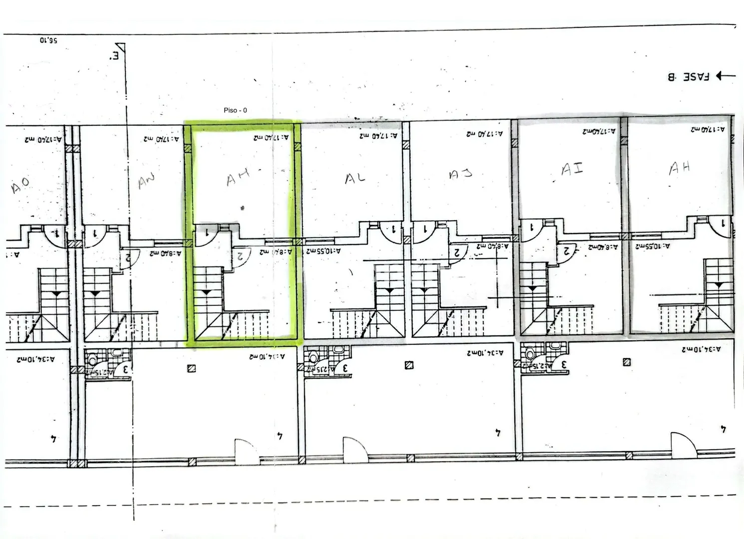
Moradia em banda Arcozelo Barcelos
Esta moradia de tipologia T3 divide-se por rés-do-chão 1º andar e 2º andar.
No rés-do-chão comtempla a garagem fechada e espaço para lavandaria
No 1º andar divide-se por sala com varanda, cozinha equipada, quarto com roupeiro e Wc de serviço
No 2º andar divide-se por Wc completo, dois quartos um deles suíte e duas marquises
Está equipada com ar-condicionado em todas as divisões, cozinha equipada com placa, exaustor, forno e esquentador, está em bom estado de conservação.
Localizada a cerca de 5 minutos do centro da Cidade de Barcelos, com transportes públicos, serviços essenciais próximos.
Excelente oportunidade de investimento ou para habitação própria.
Tipo de imóvel
Moradia em Banda
Tipologia
3 Quartos
Objetivo
Venda
Estado
Usado
Preço
Sob Consulta
Ano Construção
N/D
País
Portugal
Distrito
Braga
Concelho
Barcelos
Freguesia
Arcozelo
Zona
N/D
Elizângela Lima
+351 936 *** ***
Mostrar número
Chamada para a rede móvel nacional
Pretendo ser contactado
Data
Hora
Nome
Insira um Nome
E-mail
Insira um Email
Insira um endereço de email válido
Contacto
Insira o seu contacto telefónico
Mensagem
Solicito mais informações, sem qualquer compromisso, sobre o imóvel 2532BCL
Li na totalidade e concordo com os termos e condições apresentados.
Política de Privacidade
Para poder concluir esta operação deve ler e concordar com as nossas condições
Código
Insira o código apresentado na imagem
Enviar
Simulador de Crédito
Simulador de IMT
Valor do imóvel*
Montante de Empréstimo*
A sua idade*
Prazo empréstimo *
Prestação Mensal
0.00
€
O valor da prestação apresentada não inclui Seguro de Vida e Seguro Lar.
Indexante
0.000
%
TAEG
0.000
%
Spread
0.000
%
Prazo
0
anos
TAN
0.000
%
Simular
Inserir aqui o disclaimer. Isto é apenas uma simulação. Esta simulação de crédito não tem fins lucrativos.
Local do imóvel*
Selecione
Portugal Continental
Regiões Autónomas
Finalidade*
Selecione
Habitação Própria Permanente
Habitação Secundária ou Arrendamento
Prédios Rústicos
Outros
Valor do imóvel*
Valores complementares*
IMT
0.00
€
Imposto de Selo (0,8%)
0.00
€
Valores complementares
0.00
€
Total a pagar
0.00
€
Mais informações
Simular
Inserir aqui o disclaimer. Isto é apenas uma simulação. Esta simulação de crédito não tem fins lucrativos.
Dados de Intermediação de Crédito - (Intermediário de Crédito nº )
Saiba mais sobre a sua simulação
Nome
Campo obrigatório
E-mail
Campo obrigatório
Insira um e-mail válido
Contacto
Campo obrigatório
Observações
Isto é apenas uma simulação. Esta simulação de crédito não tem fins lucrativos.
Li e aceito a
Política de Privacidade
Para poder concluir esta operação deve ler e concordar com as nossas condições
Código
Insira o código apresentado na imagem
Enviar
Características Gerais
Gerais
Divisões
Divisões
Área
Pavimento
Paredes
Tectos
Observações
Meio Envolvente
Facilidades
Domótica
Energias Renováveis
Veja também
Braga, Barcelos
450.000 €
Moradia T3 nova Salvador Campo Barcelos
450.000 €
Moradia T3 nova Salvador Campo Barcelos
Braga, Barcelos
3
3
2
250 m²
A. Bruta
165 m²
A. Útil
400 m²
A. Terreno
Contactar
Braga, Barcelos
395.000 €
Moradia T3 nova Salvador Campo Barcelos
395.000 €
Moradia T3 nova Salvador Campo Barcelos
Braga, Barcelos
3
3
2
250 m²
A. Bruta
165 m²
A. Útil
380 m²
A. Terreno
Contactar
Braga, Barcelos
520.000 €
Moradia com piscina Abade Neiva Barcelos
520.000 €
Moradia com piscina Abade Neiva Barcelos
Braga, Barcelos
4
5
4
325 m²
A. Útil
276 m²
A. Terreno
Contactar
Mais imóveis +
Estamos disponíveis para o ajudar
Pretendo ser contactado
Data
Hora
Nome
Insira um Nome
E-mail
Insira um Email
Insira um endereço de email válido
Contacto
Insira o seu Contacto
Mensagem
Li e aceito a
Política de Privacidade
Para poder concluir esta operação deve ler e concordar com as nossas condições
Código
Insira o código apresentado na imagem
Enviar
O que é a pesquisa responsável
Esta pesquisa permite obter resultados mais ajustados à sua disponibilidade financeira.